Brødemosevej 76, 3300 Frederiksværk

2.675.000DKK

Oversigt

  • Opdateret den:
  • april 14, 2026
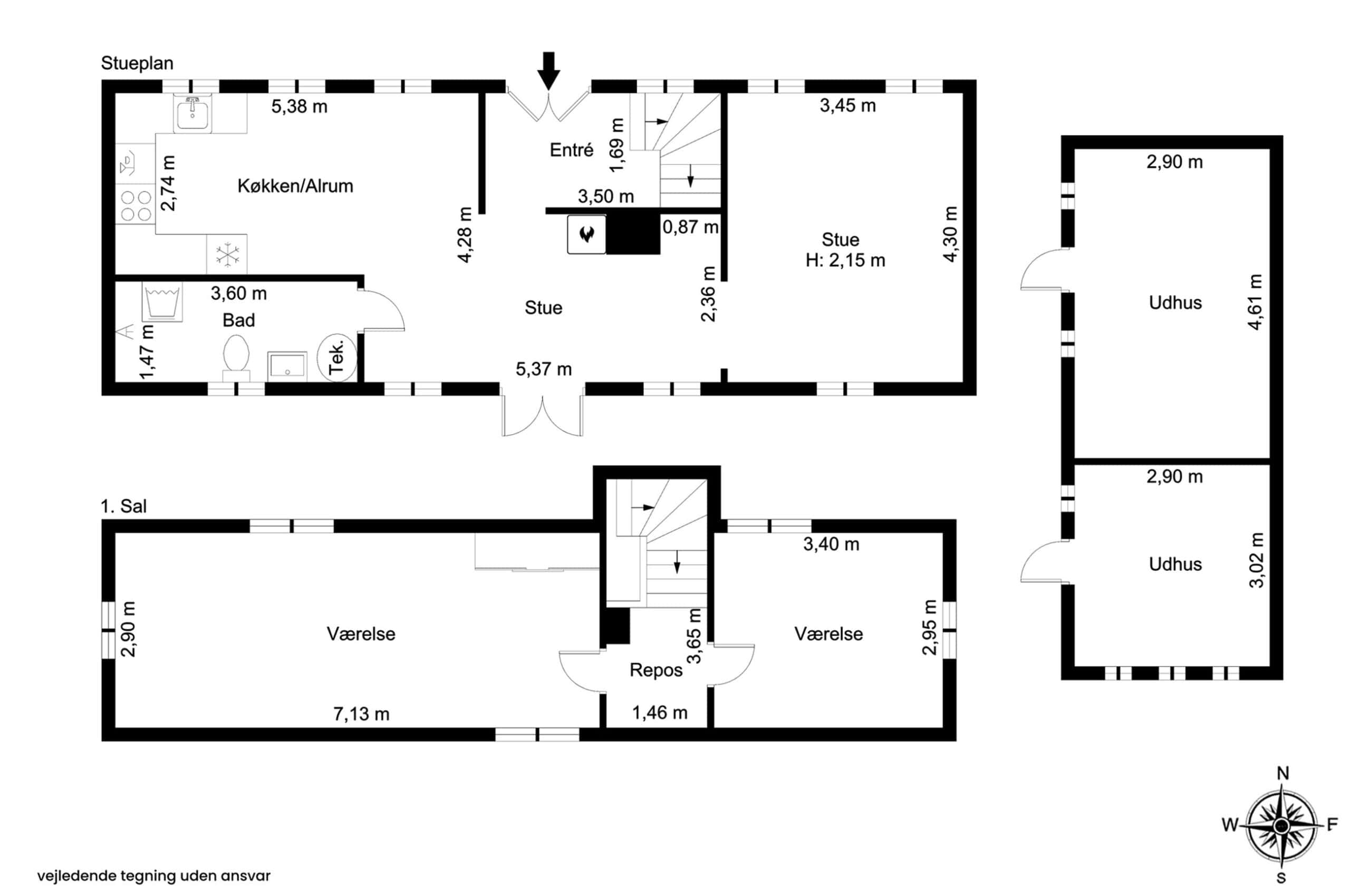
  • 98 m2 | Bolig
  • 1877 | Opført i
  • 433 m2 | Grund
  • 2 | Antal Plan
  • 4 | Antal Rum

Stråtækt idyllisk bondehus fra 1877 placeret tæt på skov i roligt kvarter. Vil i bo i denne historiske perle med stråtag fra 2003, sprossede vinduer med udskiftede glas, udhus på 18 m2 – som har været fortidens ejeres stald for husdyrhold, solrig og romantisk have ? Vingesuset fra fordums tider skal i give jer selv muligheden for at opleve ved selvsyn. Brødemoseskov er genbo til området – så her kan den skønne natur opleves så tit i ønsker det. Bondehuset er på 98 m2 boligareal og indeholder:Entre med klinkegulv og trappe til 1. salen. Autentisk køkken i bondehus stil med spisestue, badeværelse med vaskemaskine og brusebad, stue med hyggelig brændeovn og herfra er udgang til den skønneste have med solkroge og terrasser, opholdsstue med det smukkeste lysindfald. På 1. sal er : Repos og i den ene gavl er soveværelse – i den anden gavl er kontor/gæsteværelse. Lyset i boligen er helt fantastisk og de flotte trægulve klæder rummene – så book en visning af boligen og oplev følelsen og historien. Liseleje badestrand er 2,5 km herfra og i bilen tager turen 4 minutter og så kan Kattegat og byen nydes i fulde drag. 

00197JO

Sagsnummer

Kategori

Salgsopstilling

Økonomi

  • Opdateret den:
  • april 14, 2026
  • 14.573 | Brutto
  • 11.660 | Netto
  • 135.000 | Udbetaling
  • 2.460 | Ejerudgift

Plantegninger

Vil du gerne vide mere?

Henvend dig her eller ring til os på 28 15 54 54

Sammenlign lister